Experienced builders with projects completed all over Thailand.
We work hard to keep within your budget and time scale while offering the quality you would expect.
we understand your needs and offer a range of services, from remodelling an existing home to building a new one—whether it’s a family home, retirement retreat, luxury home, or holiday getaway.
Over the years, we’ve gained valuable experience and built a professional, skilled team. Most importantly, we prioritise regular, detailed communication with you throughout the process.
Personal Service and Clear Communication.
Part of our ethos is to provide a personal service throughout your project (see The Process).
This means we need to limit the number of ‘live’ projects we handle at any given time. However, we’re always happy to discuss and provide guidance on new opportunities
So if you are considering a dream house check out our work web site then get in touch.
The main benefits of choosing Krabi House Builder include:
Krabi House BuilderDesigning – Costing – Planning – Building
Site Preparation and New Builds
When starting a new build, it’s essential to begin with a thorough assessment and preparation of the land. A survey will be mandatory to evaluate factors such as soil type, drainage, and other important considerations.
Depending on the site & the building design some special groundwork like pile driving may be necessary. Power supply, drainage & sewerage channels may also be needed.
We ensure all the necessary preparations are made before building to your design and specifications. From pouring the slab, through all the construction processes to finishing inside and out.
Services
From Ideas to Reality
Our Comprehensive Building Process
We guide you every step of the way, from initial concepts to detailed plans, and from plans to realistic visual representations.
Watch your ideas take shape with precise models crafted by skilled engineers and architects. For a worry-free build, we offer architectural services and soil testing by qualified engineers.
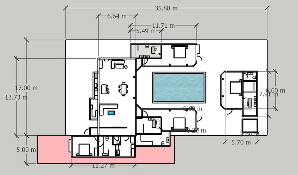
Detailed plans ensure you receive a comprehensive Bill of Quantities (BOQ) covering all aspects of your project, including construction, landscaping, fencing, and additional works.
The Process For A Successful Building Project
All building projects require careful planning, there are several stages which are essential for a successful outcome.
Before work begins on-site, these stages will include local knowledge and regulations. Every project benefits from experience, modern project management, and advanced construction techniques. ;













